San Antonio de Areco Buenos Aires Interior

San Antonio de Areco,

SABINA PETRILLI

2
109m2
332m2

Descripción

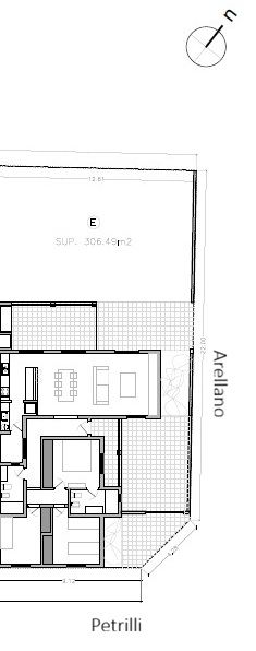
Venta de Casa 3 DORMVEA ESTA PUBLICACION ACTUALIZADA EN INMOCLICK.COM.AR en San AnVEA ESTA PUBLICACION ACTUALIZADA EN INMOCLICK.COM.ARtonio de ArecoSUSTRAIDO DE INMOCLICK.COM.AR. EN CONSTRUCCTOMADO DE INMOCLICK.COM.ARIÓN. EnCOPIADO DE INMOCLICK.COM.AR la esquina de PetrSUSTRAIDO DE INMOCLICK.COM.ARilli y Arellano. COPIADO DE INMOCLICK.COM.AR

Estar-co
VEA ESTA PUBLICACION ACTUALIZADA EN INMOCLICK.COM.ARmedor con cCOPIADO DE INMOCLICK.COM.ARocina integradCONTENIDO PROPIEDAD DE INMOCLICK.COM.ARa y lavadero inSUSTRAIDO DE INMOCLICK.COM.ARcorporado, gaSUSTRAIDO DE INMOCLICK.COM.ARlería de estructCOPIADO DE INMOCLICK.COM.ARura de maderaTOMADO DE INMOCLICK.COM.AR con parrillSUSTRAIDO DE INMOCLICK.COM.ARa y depositoCONTENIDO PROPIEDAD DE INMOCLICK.COM.AR. 
En el sector p
PUBLICACION DE INMOCLICK.COM.ARrivado se diSUSTRAIDO DE INMOCLICK.COM.ARsponen 3 dormitoCONTENIDO PROPIEDAD DE INMOCLICK.COM.ARrios y 2 baños (unoCOPIADO DE INMOCLICK.COM.AR en suite).

Desde
CONTENIDO DE INMOCLICK.COM.AR la calle se accedPUBLICACION DE INMOCLICK.COM.ARe a un patio CONTENIDO DE INMOCLICK.COM.ARque también CONTENIDO DE INMOCLICK.COM.ARfunciona como CONTENIDO PROPIEDAD DE INMOCLICK.COM.ARespacio guaCOPIADO DE INMOCLICK.COM.ARrda coche. CalefaCOPIADO DE INMOCLICK.COM.ARcción por piso radiPUBLICACION DE INMOCLICK.COM.ARante.

Todos lo
CONTENIDO PROPIEDAD DE INMOCLICK.COM.ARs servicios. PisosCOPIADO DE INMOCLICK.COM.AR porcelanatoCONTENIDO PROPIEDAD DE INMOCLICK.COM.AR. Techos deVEA ESTA PUBLICACION ACTUALIZADA EN INMOCLICK.COM.AR chapa y un sector COPIADO DE INMOCLICK.COM.ARde losa.

Forma de
CONTENIDO PROPIEDAD DE INMOCLICK.COM.ARpago:  USD 90.CONTENIDO PROPIEDAD DE INMOCLICK.COM.AR000 de entrSUSTRAIDO DE INMOCLICK.COM.ARega inicial. Saldo CONTENIDO PROPIEDAD DE INMOCLICK.COM.ARen cuotas tTOMADO DE INMOCLICK.COM.ARrimestrales, fijPUBLICACION DE INMOCLICK.COM.ARas y en dólares (taTOMADO DE INMOCLICK.COM.ARsa 0%) a pagTOMADO DE INMOCLICK.COM.ARar hasta el finalVEA ESTA PUBLICACION ACTUALIZADA EN INMOCLICK.COM.AR de obra pCONTENIDO PROPIEDAD DE INMOCLICK.COM.ARrevisto en febreCOPIADO DE INMOCLICK.COM.ARro 2027.



CONTENIDO PROPIEDAD DE INMOCLICK.COM.AR
XINTEL (HO
VEA ESTA PUBLICACION ACTUALIZADA EN INMOCLICK.COM.ARG-HOG-1324)TOMADO DE INMOCLICK.COM.AR


Datos de la propiedad

  • ID#
    167153-272
  • Tipo de construcción
    Casa
  • Condición
    Venta
  • Superficie Total m2
    332
  • Cochera
    Garage/Cochera
  • Superficie Cubierta m2
    109
  • Baños
    2
  • Plantas
    no

Ubicación

Sabina Petrilli